
液壓、氣動角式快開排泥閥,是一種由液壓源或氣動源作執行機構的角型截止類閥門。通常成排安裝在沉淀池底部外側壁,用以排除池底沉淀的泥砂和污物。J744X液壓角式快開排泥閥液壓缸之活塞為L形皮碗,密封性能好,經久耐用,閥門密封副亦為橡膠密封,無泄漏。J744X液壓角式快開排泥閥還可通過電動二位四通換向電磁閥實現遠程控制。J744X液壓角式快開排泥閥操作方便,安全可靠。
當前水力控制閥被廣泛用于石油化工、化工、煤氣、天然氣、液化石油氣、暖通行業以及一般工業中。
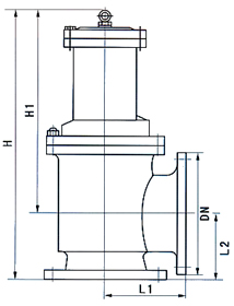
![]() | ![]() |
J744X液壓角式快開排泥閥 結構示意圖 | J744X液壓角式快開排泥閥 安裝示意圖 |
公稱壓力0 6MPa、1 0MPa
公稱通徑:100"~400mm
最低馬驅動壓力:0.15MPa
適用介質:水、污水
驅動介質:清水、氣
適用溫度:0~80℃
法蘭標準:GB/T l 7241 6 GB/T 911 3
試驗標準:GB/T l 3927 APl 598
零件名稱 | 月體、月蓋 | 膜片壓板、閥盤 | 閥桿 | 膜片 |
---|---|---|---|---|
材 料 | 鑄鐵、球鐵、碳鋼 | 球鐵、青銅 | 不镕鋼 | 尼龍強化橡膠 |
DN | 80 | 100 | 150 | 200 | 250 | 300 | 350 | 400 |
---|---|---|---|---|---|---|---|---|
H | 480 | 500 | 620 | 735 | 805 | 940 | 1100 | 1200 |
L1 | 135 | 145 | 175 | 225 | 260 | 280 | 305 | 340 |
L2 | 125 | 125 | 145 | 185 | 205 | 245 | 270 | 310 |
dgfmjt@163.com
021-66861950
上海市金山區亭林鎮亭朱公路1918號