
本公司生產的Y型拉桿伸縮過濾器是Y型過濾器與伸縮接頭組合,主要用于高層建筑、多層建筑或工廠內給排水配管,通常安裝于減壓閥、泄壓閥、定水位閥或其它主要設備的進口端,便于清除雜物或安裝拆卸以保證閥類或設備之正常使用。
YSTF型拉桿伸縮過濾器是Y型過濾器的一種延伸過濾器,與Y型過濾器結構相同,是由Y型過濾器及伸縮接頭組合,具有安裝長度可調節,裝拆方便的特點,既可使用水力控制閥及精密的易堵塞的機械產品的過濾設備,又可起到熱帳冷縮的原理,拉桿伸縮過濾器是輸送介質的管道系列不可缺少的一種裝置。
拉桿伸縮過濾器最大特點是伸縮型特點,其最大位置可移伸100mm,有利于安裝方便,提高工作效率,主要起管道不受熱脹冷縮,引起的擠壓或拉伸導致管道的變形及破裂,起保護管道作用。
型號 | 公稱壓力(MPa) | 耐壓驗壓力(MPa) | 工作壓力(MPa) |
---|---|---|---|
YSTF-10 | 1.0 | 1.1 | 1.0 |
YSTF-16 | 1.6 | 1.76 | 1.6 |
零件名稱 | 管體 | 濾網 | 伸縮拉桿 | O型圈 |
---|---|---|---|---|
材料 | 灰鑄鐵或球墨鑄鐵鑄鋼 | 不銹鋼 | 碳鋼鍍鋅 | 丁腈橡膠 |
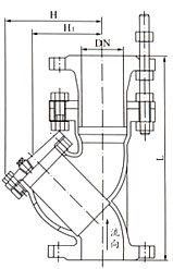
公稱通徑(mm) | L | H | H1 | ![]() |
---|---|---|---|---|
50 | 300 | 155 | 195 | |
65 | 320 | 183 | 245 | |
80 | 380 | 210 | 295 | |
100 | 430 | 250 | 344 | |
125 | 500 | 305 | 415 | |
150 | 550 | 358 | 485 | |
200 | 650 | 450 | 602 | |
250 | 775 | 503 | 718 | |
300 | 900 | 578 | 815 | |
350 | 1025 | 598 | 844 | |
400 | 1150 | 618 | 872 |
dgfmjt@163.com
021-66861950
上海市金山區亭林鎮亭朱公路1918號