
設計制造:GB/T 12224-1989;GB/T12235-1989
連接形式:法蘭連接;內螺紋連接
結構特征:錐面密封;上螺紋閥桿
閥門檢驗和實驗:GB/T 13927-1992
材料:碳鋼按GB/T 12228-1989的規定
不銹鋼按 GB/T 1220-1989的規定
當前針型閥廣泛應用于城建、化工、冶金、石油、制藥、食品、飲料、環保中。
實驗項目 | 壓力值 |
---|---|
公稱壓力 | 4 |
殼體實驗 | 6 |
密封試驗 | 4.4 |
氣壓試驗 | 2.4 |
適用溫度 | ≤180℃ |
適用介質 | 水、蒸汽、油品等 |
型號 | 閥體 | 接頭 | 閥桿 | 螺帽 | 填料 |
---|---|---|---|---|---|
J48-W-40 | 20# | 20# | 2Cr13 | 20# | PTFE |
J48-40P | SS304 | SS304 | SS304 | SS304 |
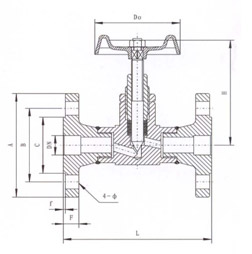
規格 | A | B | C | F | f | N-Ф | L | H | Do | 重量(kg) |
---|---|---|---|---|---|---|---|---|---|---|
DN10 | 90 | 60 | 41 | 14 | 2 | 4-φ14 | 130 | 90 | 63 | 2.0 |
DN15 | 95 | 65 | 46 | 14 | 2 | 4-φ14 | 130 | 90 | 63 | 2.5 |
DN20 | 105 | 75 | 56 | 16 | 2 | 4-φ14 | 150 | 105 | 90 | 3.5 |
DN25 | 115 | 85 | 65 | 16 | 2 | 4-φ14 | 160 | 120 | 100 | 4.0 |
注:PN1.0、PN1.6、PN2.5、PN4.0法蘭尺寸一樣
dgfmjt@163.com
021-66861950
上海市金山區亭林鎮亭朱公路1918號