
用途:G41JW(無襯里)氣動隔膜閥(往復型)專用于控制非腐蝕性或一般腐蝕性介質,閥體內腔表面無襯里或覆有可供選擇的各種橡膠,適用于不同工作溫度和流體管路。
適用溫度:≤85℃、≤100℃、 ≤120℃、≤150℃(按照襯里和隔膜材料)
壓力等級:PN0.6、1.0、1.6
當前隔膜閥廣泛地應用于城建、化工、冶金、石油、制藥、食品、飲料、環保中。
閥體:鑄鐵、球墨鑄鐵、碳鋼、不銹鋼
閥蓋:鑄鐵、球墨鑄鐵、碳鋼、不銹鋼
襯里:無襯里、橡膠
隔膜:橡膠
閥瓣:鑄鐵、碳鋼
氣缸:球墨鑄鐵
活塞:碳鋼
閥桿:碳鋼
手輪:鑄鐵
襯里層:電火花檢測
試驗與檢驗按GB/T13297標準
公稱壓力:PN(Mpa)
閥體:PN×1.5
密封:PN×1.1
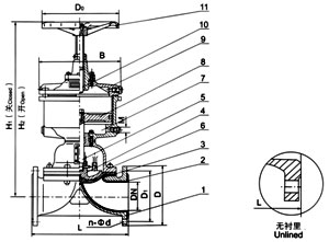
部件列表: 1、閥體 2、閥體襯里 3、隔膜 4、閥瓣 5、下閥桿 6、閥蓋 7、氣缸 8、活塞 9、氣缸蓋 10、上閥桿 11、手輪 設計與制造:GB122239
結構長度:GB12221、JB1688
法蘭連接尺寸:GB4216、JB78
DN mm | 公稱壓力 MPa | 工作壓力 MPa | L (mm) | D (mm) | D1 (mm) | n-φd (mm) | F (mm) | H1 (mm) | H2 (mm) | D0 (mm) | B | 氣源壓力 MPa | 氣源接頭 in | 耗氣量 cm3 | 質量 |
---|---|---|---|---|---|---|---|---|---|---|---|---|---|---|---|
15 | 0.6 0.6 | 0.6 | 125 | 95 | 65 | 4-14 | 2 | ||||||||
20 | 139 | 105 | 75 | 4-14 | 2 | ||||||||||
25 | 145 | 115 | 85 | 4-14 | 2 | 250 | 264 | 120 | 94 | 0.4 | 10×1 | 2.395×102 | 6.5 | ||
32 | 160 | 140 | 100 | 4-18 | 2 | 3025 | 328 | 140 | 120 | 0.4 | 12×1.25 | 6.082×102 | |||
40 | 180 | 150 | 110 | 4-18 | 3 | 306 | 328 | 140 | 120 | 0.4 | 12×1.25 | 6.082×102 | |||
50 | 210 | 165 | 125 | 4-18 | 3 | 379 | 405 | 160 | 185 | 0.4 | 12×1.25 | 1.235×102 | 25 | ||
65 | 250 | 185 | 145 | 4-18 | 3 | 467 | 502 | 240 | 245 | 0.5 | 16×1.5 | 3.725×103 | 31.5 | ||
80 | 300 | 200 | 160 | 4-18 | 3 | 483 | 523 | 240 | 245 | 0.5 | 16×1.5 | 3.725×103 | 62.5 | ||
100 | 350 | 220 | 180 | 8-18 | 3 | 565 | 617 | 280 | 330 | 0.5 | 20×1.5 | 9.458×103 | 93.5 | ||
125 | 400 | 250 | 210 | 8-18 | 3 | 664 | 732 | 320 | 380 | 0.5 | 20×1.5 | 1.409×104 | 114 | ||
150 | 460 | 285 | 240 | 8-22 | 3 | 750 | 830 | 320 | 470 | 0.5 | 20×1.5 | 2.868×104 | 164 | ||
200 | 0.4 | 570 | 340 | 295 | 8-22 | 4 | 930 | 1050 | 400 | 470 | 0.5 | 20×1.5 | 4.619×104 | 249 | |
250 | 680 | 395 | 350 | 12-22 | 4 |
dgfmjt@163.com
021-66861950
上海市金山區亭林鎮亭朱公路1918號