
YGa43H/Y型高靈敏度大流量蒸汽減壓閥屬于先導活塞式減壓閥。由主閥和導閥兩部分組成。主閥主要由閥座、主閥盤、活塞、彈簧等零件組成。導閥主要由閥座、閥瓣、膜片、彈簧、調節彈簧等零件組成。本產品在普通減壓閥基礎上作了很大改進,加大了活塞面積,改變了節流結構。改變了密封形式,加大了過流面積等等,從而在提高靈敏度、流量、壽命等方面大大改善了性能。YGa43H/Y型高靈敏度大流量蒸汽減壓閥主要用于蒸汽管路,適用于流量大流量變化大,進口壓力變化大的蒸汽管路。
適用范圍
當前減壓閥系列產品適用于城建、化工、冶金、石油、制藥、食品、飲料、環保等行業。
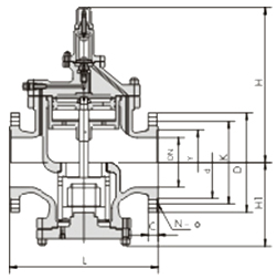
結構示意圖
主要技術參數和性能指標
公稱壓力(Mpa) | 1.6 | 2.5 | 4.0 | 6.4 | 10.0 | 16.0 |
---|---|---|---|---|---|---|
殼體試驗壓力(Mpa)* | 2.4 | 3.75 | 6.0 | 9.6 | 15.0 | 24 |
密封試驗壓力(Mpa) | 1.6 | 2.5 | 4.0 | 6.4 | 10.0 | 16.0 |
最高進口壓力(Mpa) | 1.6 | 2.5 | 4.0 | 6.4 | 10.0 | 16.0 |
出口壓力范圍(Mpa) | 0.04-1.0 | 0.05-1.6 | 0.08-2.5 | 0.2-3.5 | 0.5-3.5 | 0.5-4.5 |
壓力特性偏差(Mpa)△P2P | GB12246-1989 | |||||
流量特性偏差(Mpa)P2G | GB12246-1989 | |||||
最小壓差(Mpa) | 0.07 | 0.1 | 0.15 | 0.4 | 0.5 | 0.8 |
滲漏量 | GB12245-1989 |
*:殼體試驗不包括膜片、頂蓋
主要零件材料
零件名稱 | 零件材料 |
---|---|
閥體 閥蓋 底蓋 | WCB |
閥座 閥瓣 | 2Cr13 |
缸套 活塞 | 鋁鐵青銅 |
膜片 | 1Cr18Ni9 |
活塞環 | 合金鑄鐵/對位聚苯 |
導閥座 導閥桿 | 2Cr13 |
主閥彈簧 | 50CrVA |
導閥主彈簧 | 50CrVA |
調節彈簧 | 60Si2Mn |
流量系數(Cv)
DN | 50 | 65 | 80 | 100 | 125 | 150 | 200 | 250 | 300 | 350 | 400 | 500 |
---|---|---|---|---|---|---|---|---|---|---|---|---|
Cv | 1 | 2.5 | 4 | 6.5 | 9 | 16 | 25 | 36 | 64 | 100 | 140 | 250 |
外形尺寸(PN1.6-4.0) 單位:mm
公稱通徑DN | 外 形 尺 寸 | |||
---|---|---|---|---|
L | H | Hl | ||
1.6/2.5MPa | 4.0MPa | |||
15 | 160 | 180 | 265 | 85 |
20 | 160 | 180 | 265 | 85 |
25 | 180 | 200 | 280 | 95 |
32 | 200 | 220 | 280 | 95 |
40 | 220 | 240 | 290 | 105 |
50 | 250 | 270 | 300 | 130 |
65 | 280 | 300 | 315 | 145 |
80 | 310 | 330 | 330 | 170 |
100 | 350 | 380 | 405 | 200 |
125 | 400 | 450 | 450 | 225 |
150 | 450 | 500 | 485 | 265 |
200 | 500 | 550 | 570 | 290 |
250 | 650 | 640 | 325 | |
300 | 800 | 740 | 360 | |
350 | 850 | 810 | 395 | |
400 | 900 | 950 | 430 | |
500 | 950 | 1080 | 500 |
外形尺寸(PN6.4-16.0) 單位:mm
公稱通徑DN | 外 形 尺 寸 | |||
---|---|---|---|---|
L | H | Hl | ||
6.4MPa | 10.0/16.0MPa | |||
15 | 180 | 180 | 280 | 100 |
20 | 180 | 200 | 280 | 100 |
25 | 200 | 220 | 300 | 115 |
32 | 220 | 230 | 300 | 115 |
40 | 240 | 240 | 315 | 130 |
50 | 270 | 300 | 340 | 135 |
65 | 300 | 340 | 355 | 150 |
80 | 330 | 360 | 370 | 175 |
100 | 380 | 450 | 205 | |
125 | 450 | 510 | 235 | |
150 | 500 | 555 | 275 | |
200 | 550 | 640 | 300 | |
250 | 650 | 720 | 335 | |
300 | 800 | 830 | 375 | |
350 | 850 | 880 | 410 | |
400 | 900 | 1020 | 445 | |
500 | 950 | 1080 | 515 |
訂貨須知
產品型號
公稱壓力 公稱通徑
連接法蘭標準
額定流量系數Cv
進口壓力
調節范圍
dgfmjt@163.com
021-66861950
上海市金山區亭林鎮亭朱公路1918號