
GA41/GA51型單杠桿安全閥適用于工作溫度≤450℃的空氣、蒸汽等介質的設備和管路上,作為超壓保護裝置。當設備和管路內壓力超過允許值時,閥門自動關閉,保證設備和管路的安全運行。該閥出口有套筒式、法蘭式二種,選購時應先核對確認。
適用范圍
該安全閥適用于城建、化工、冶金、石油、制藥、食品、飲料、環保
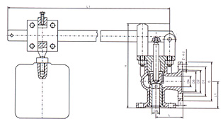
結構示意圖
GA41/GA51型單杠桿安全閥 主要尺寸
公稱通徑 DN(mm) | 尺寸(mm) | 重量 (kg) | ||||
---|---|---|---|---|---|---|
do | L
| L1 | DN
| H
| ||
40
| 32
| 120
| 110
| 290
| 630
| 25
|
50
| 40
| 135
| 310
| 310
| 630
| 30
|
80
| 65
| 160
| 345
| 345
| 630
| 55
|
單桿安全閥是為了防止壓力設備和容器或易引起壓力升高或容器內部壓力超過限度而發生爆裂的安全裝置。是壓力容器、鍋爐、壓力管道等壓力系統使用廣泛的一種安全裝置,保證壓力系統安全運行。
dgfmjt@163.com
021-66861950
上海市金山區亭林鎮亭朱公路1918號