
東鍋泵閥生產銷售的QV47Y型電動V型球閥是一種芯閥座采用金屬,或金屬對聚四氟乙烯密封配合的旋轉球閥,它將球閥和蝶閥的最佳控制特性結合成一體,既可用作控制調節閥,又可作關斷切斷閥。 ZAJV電動V型球閥,由YXR、PSQ電動執行機構和V型球閥組成,是一種由V型切口球面閥板在小開度范圍內貼著密封面旋轉而控制流體的角行程調節閥。 電動V型球閥V型切口球面板在增大調節比的同時,在截流時對密封環還有剪切作用,因此適用于要求大調節比的控制系統,以及對含纖維質流體、料漿類流體的控制。 電動V型球閥 廣泛應用于石油、化工、電力、冶金、鋼鐵、造紙、醫藥、食品、紡織、輕工等行業。
特點 V型切口的球芯與金屬閥座之間具有剪切作用,特別適用于含纖維、微小固體顆粒、料漿等介質; 蝸輪傳動V型切斷球閥還具有調節并可靠定位能力,流量特性為近百分比,可調范圍廣; 采用板簧加載的可動閥座結構,閥座與球芯不會產生卡阻或脫離等問題,密封可靠,適用壽命長。 | ![]() |
號 NO | 材料標準 零件名稱 | 材料牌號Stamdard | ||||
---|---|---|---|---|---|---|
碳鋼 | 不銹鋼 | |||||
GB | ASTM | GB | ASTM | |||
01 | 雙頭螺母Stud | 35CrMoA | A193-B7 | 1Cr17Ni2 | A193-B8M | |
02 | 螺母Nut | 45 | A194-2H | OCr18Ni | A194-8M | |
03 | 底蓋Lower cover | 25 | A105 | 1Cr18Ni9Ti 1Cr18Ni12Mo2Ti | F304/F316/ F304L/F316L | |
04 | 墊圈Gasket | 氟橡膠;PTFE;金屬夾石墨Viton ; PTFE; Metel backed graphite | ||||
05 | 止推軸承Lover stem | 金屬夾PTFEMetel backed graphite | ||||
06 | 下閥桿軸承 | 金屬夾 | ||||
07 | 下閥桿Lover stem | 2Cr13 | A276-410 | 1Cr18Ni9Ti/1Cr18Ni12Mo2Ti | F304/F316/F304L/F316L | |
08 | 球體Ball | ZG1Cr18Ni9Ti 滲氮 | CF8滲氮 | 1Cr18Ni9Ti/1Cr18Ni12Mo2Ti 滲氮 | F304/F316/F304L/F316L 滲氮 | |
09 | 閥體Body | WCB | A216-WCB | ZG1Cr18Ni9Ti/ZG1Cr18NI12Mo2TI | CF8/CF8M/CF3/CF3M | |
10 | 閥座O型圈 Seat”O”ring | 氟橡膠Viton | ||||
11 | 閥座Seat | 2Cr13滲氮 | A276-410 | 1Cr18Ni9Ti 1Cr18Ni12Mo2Ti滲氮 | F304/F316/F304L/F316L 滲氮 | |
12 | 球閥鍵Body key | 40Cr | 1Cr17Ni2 | |||
13 | 上閥桿軸承 Stem bearing | PTFE;PPL | ||||
14 | 閥桿填料 Stem packing | 石墨 Graphite | ||||
15 | 填料壓環 Packing ring | 2Cr13 | A276-410 | 1Cr18Ni9Ti/1Cr18Ni12Mo2Ti 滲氮 | F304/F316/ F304L/F316L | |
16 | 填料壓蓋 Stuffing gland | WCB | A216-WCB | ZG1Cr18Ni9Ti ZG1Cr18NI12Mo2TI | CF8/CF8M/ CF3/CF3M | |
17 | 螺釘Bolt | 35CrMoA | A193-B7 | 1Cr17Ni2 | A193-B8M | |
18 | 支架Yoke | WCB | ||||
19 | 上閥桿Stem | 2Cr13 | A276-410 | 1Cr18Ni9Ti/1Cr18Ni12Mo2Ti | F304/F316/F304L/F316L | |
20 | 鍵Key | 40Cr | 1Cr17Ni2 |
法蘭連接V型球閥
應用規范Note
設計、制造按GB/T12237
結構長度按GB12221-89
連接法蘭按JB/T79.1~79.4End
閥門檢查和實驗按GB/T13927
驅動方式:手動、氣動、電動
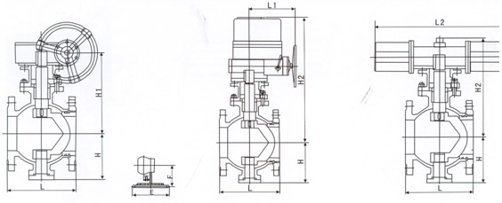
PN1.6MPa主要連接尺寸及重量
公稱通徑DN | 50 | 65 | 80 | 100 | 125 | 150 | 200 | 250 | 300 | 400 | 500 | |
---|---|---|---|---|---|---|---|---|---|---|---|---|
L | 124 | 145 | 165 | 194 | 210 | 229 | 243 | 297 | 338 | 520 | 600 | |
H | 102 | 114 | 127 | 152 | 184 | 219 | 273 | 360 | 395 | 470 | 580 | |
手動 Manual operated | H1 | 107 | 125 | 152 | 178 | 300 | 330 | 398 | 495 | 580 | 670 | 840 |
E | - | - | - | - | - | - | 116 | 116 | 171 | 257 | 257 | |
F | - | - | - | - | - | - | 350 | 350 | 400 | 400 | 400 | |
W | 230 | 400 | 400 | 650 | 1050 | 1050 | 600 | 600 | 800 | 800 | 800 | |
Wt(kg) | 12 | 16 | 22 | 35 | 58 | 74 | 205 | 322 | 460 | 864 | 1600 | |
電動 Electro operated | H2 | - | - | - | - | - | 554 | 600 | 652 | 760 | 830 | 940 |
L1 | - | - | - | - | - | 235 | 235 | 235 | 259 | 400 | 410 | |
氣動 Pneumatic operated | H3 | 274 | 379 | 389 | 479 | 552 | 666 | 736 | 926 | 1059 | 1393 | 1538 |
L2 | 270 | 405 | 405 | 576 | 576 | 776 | 776 | 776 | 1060 | 1360 | 1360 |
PN2.5MPa主要連接尺寸及重量
公稱通徑DN | 50 | 65 | 80 | 100 | 125 | 150 | 200 | 250 | 300 | 400 | 500 | |
---|---|---|---|---|---|---|---|---|---|---|---|---|
L | 124 | 145 | 165 | 194 | 210 | 229 | 243 | 297 | 338 | 520 | 600 | |
H | 102 | 114 | 127 | 152 | 184 | 219 | 273 | 360 | 395 | 470 | 580 | |
手動 Manual operated | H1 | 107 | 125 | 152 | 178 | 300 | 330 | 398 | 495 | 580 | 670 | 840 |
E | - | - | - | - | - | - | 116 | 116 | 171 | 257 | 257 | |
F | - | - | - | - | - | - | 350 | 350 | 420 | 400 | 400 | |
W | 230 | 400 | 400 | 650 | 1050 | 1050 | 600 | 600 | 800 | 800 | 800 | |
Wt(kg) | 15 | 24 | 30 | 55 | 87 | 118 | 255 | 370 | 533 | 1030 | 2100 | |
電動 Electro operated | H2 | - | - | - | - | - | 235 | 235 | 400 | 400 | 410 | 420 |
L1 | - | - | - | - | - | 74 | 250 | 350 | 420 | 400 | 400 | |
氣動 Pneumatic operated | H3 | 340 | 379 | 452 | 479 | 646 | 666 | 814 | 1002 | 1059 | 1205 | 1295 |
L2 | 405 | 405 | 574 | 574 | 756 | 756 | 1060 | 1060 | 1060 | 1360 | 2840 |
dgfmjt@163.com
021-66861950
上海市金山區亭林鎮亭朱公路1918號